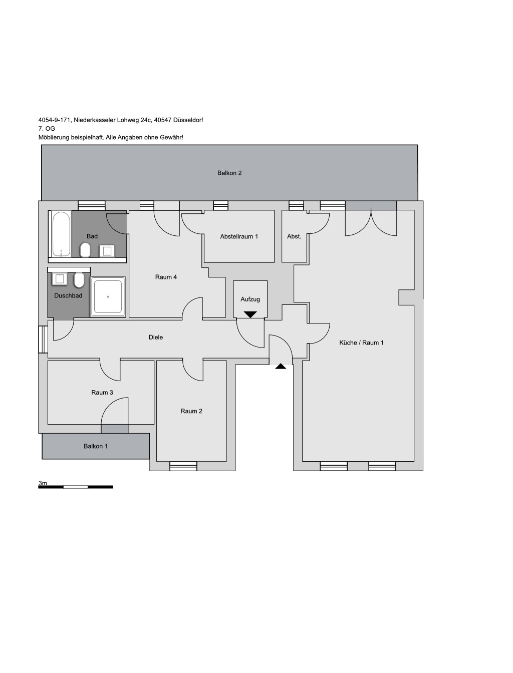
4-Zimmer-Penthouse-Wohnung mit großer Dachterrasse
Wohnberechtigungsschein nicht erforderlich
Objektbeschreibung
Objektreferenz: 1.4054.9.171 In unserem Neubauobjekt Niederkasseler Lohweg 20-26b (Erstbezug 2023) in Düsseldorf-Lörick bieten wir Ihnen 221 Wohnungen von 1-Zimmer-Apartments bis 5 Zimmer sowie eine Tiefgarage mit 151 Stellplätzen an. Die Wohnungen teilen sich auf 11 Mehrfamilienhäuser auf, wovon 5 Mehrfamilienhäuser mit 131 Wohnungen auf dem freifinanzierten Wohnungsmarkt, 3 Mehrfamilienhäuser mit 50 Wohnungen auf dem öffentlich geförderten Wohnungsmarkt und 3 Mehrfamilienhäuser mit 40 Wohnungen auf dem einkommensabhängigen Wohnungsmarkt (preisgedämpft) angeboten werden. Eine integrierte Kita schafft ideale Bedingungen für Eltern mit Kindern. Zudem ist im Innenhof ein großzügiger Kinderspielplatz angesiedelt. Alle Wohnungen sind über einen Personenaufzug barrierefrei zu erreichen. Moderne Architektur und Ausstattungen wie Parkettboden, Fußbodenheizung, Videogegensprechanlage, Glasfaser für Telekommunikationsdienste und einbruchshemmenden Wohnungseingangstüren erfüllen gehobene Ansprüche an Wohn- und Lebensqualität. Bis auf wenige Ausnahmen haben die Fenster zudem Kunststoffrollläden. Alle Wohnungen verfügen über Balkone bzw. Terrassen mit eigener Gartenfläche. Die Bäder sind mit modernen, großformatigen Wand- und Bodenfliesen gefliest, alle anderen Räume sind mit hochwertigem Eichenparkett ausgestattet. Ein ausgeklügeltes Lüftungskonzept sorgt für eine dauerhafte Luftzirkulation in den Wohnräumen. Als besonderen Service erhalten alle Mieterinnen und Mieter einen Zugang für die auf dem Grundstück befindliche Renz-Paketanlage, die ausschließlich unseren Mietern zur Nutzung vorbehalten ist. Über eine App können Sie ganz bequem eine Abstellgenehmigung an teilnehmende Lieferdienste erteilen, sollten Sie mal nicht zu Hause anzutreffen sein. Obendrein können Sie hierrüber auch frankierte Pakete kostenpflichtig von Paketdiensten abholen lassen. Auf 40 Tiefgaragenstellplätzen wurde die Leitungsinfrastruktur für die Errichtung einer Wallbox bauseits hergerichtet. Ein intelligentes Lastenmanagement sorgt für eine faire Aufteilung der Stromversorgung. Schulen, Kinderbetreuungseinrichtungen, Fitnessstudios sowie Geschäfte des täglichen Bedarfs und der ärztlichen Versorgung sind in unmittelbarer Nähe zu finden. Die weitläufigen Rheinwiesen Niederkassel liegen ebenfalls nicht weit entfernt und dienen der Naherholung. Das Neubauprojekt ist bestens mit den Haltestellen „Prinzenallee“ und „Am Seestern“ an den ÖPNV angebunden. Von hier aus gelangen Sie mit den Stadt- und Straßenbahnen U70, U76 und U77 sowie den zahlreichen Busverbindungen in die übrigen Stadtteile Düsseldorfs und in benachbarte Städte. So sind Sie beispielsweise mit den Stadt- und Straßenbahnen in ca. 15 Minuten am Düsseldorfer Hauptbahnhof und können von hier überregional verreisen. Darüber hinaus bietet die Lage ideale Bedingungen für die Fortbewegung mit dem KFZ. Links des Rheins erreichen Sie in 2 km die Zufahrt zur A52 mit weitreichenden Anbindungsmöglichkeiten. Mit Hilfe der Rheinkniebrücke, Oberkasseler Brücke oder Theodor-Heuss-Brücke können Sie Ihre Reise auf der rechten Seite des Rheins antreten, über die Sie schlussendlich auf die A44, A46 oder A52 gelangen. Düsseldorf-Am Seestern, was einst als Entlastungsfläche für die Düsseldorfer Innenstadt gedacht war, erweist sich heute als attraktive Bürolage. Das Büroviertel beherbergt inzwischen zahlreiche große Arbeitgeber, insbesondere auch wegen seiner einzigartigen Nähe zum Messegelände und dem Düsseldorfer Flughafen.
Lage
Entfernung zu allgemeinem Arzt 10 min, Entfernung zu Einkaufsmöglichkeit des täglichen Bedarfs 05 min, Entfernung zu Grünanlagen 15 min, Entfernung zu Einkaufsmöglichkeit des täglichen Bedarfs 05 min, Entfernung zur Grundschule 10 min,Entfernung zur KiTa 05 min, Entfernung zu weiterführenden Schulen 15 min, ÖPNV Haltestelle Prinzenallee oder Am Seestern,Entfernung zu ÖPNV 05 min
Sonstige Angaben
Bei Bedarf kann ein Tiefgaragenstellplatz für 120,00 € / Monat angemietet werden. HINWEIS ZUR BEWERBUNG: Um Ihnen den bestmöglichen Service zu bieten, können Sie sich bei uns digital bewerben. Kopieren Sie den untenstehenden Link in die Adresszeile Ihres Browsers und folgen Sie der Anleitung. https://rdr.immomio.com/b4U3T0
DIE WOHNBAU, DAS KLAPPT
DIE WOHNBAU, DAS KLAPPT
Eins, zwei, drei – Ihr neues Zuhause ist bei uns nur wenige Schritte entfernt.





