Baujahr 2020! 3,0-Zimmer-Wohnung in Bonn Endenich (5365-5)
Wohnberechtigungsschein nicht erforderlich
Objektbeschreibung
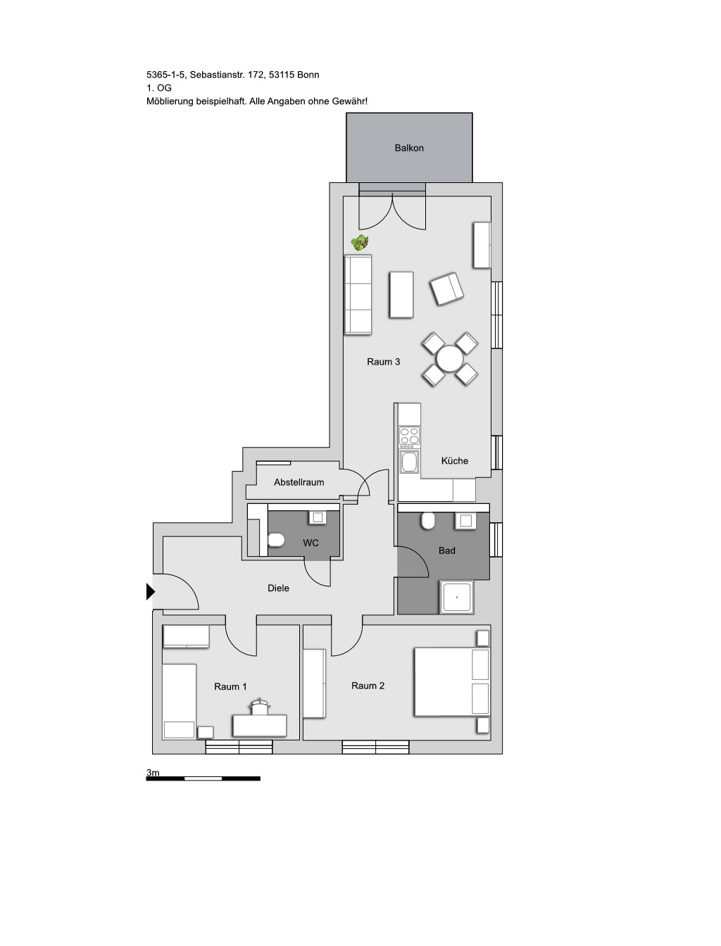
Objektreferenz: 1.5365.1.5 In unserem Neubauobjekt Sebastianstr. 172 – 178 (Baujahr 2020) in Bonn-Endenich bieten wir Ihnen 34 Wohnungen mit 1 bis 4 Zimmern und einer Wohnfläche von 48 m² bis 115 m² sowie 26 Tiefgaragenstellplätze an. Alle Wohnungen verfügen entweder über geräumige Balkone oder Terrassen. Die Bäder sind mit modernen, großformatigen und hellen Boden- und Wandfliesen gefliest, alle anderen Räume sind mit einem Parkettboden ausgestattet. Die Zentralheizung versorgt die in allen Räumen vorhandene Fußbodenheizung. Ferner verfügen alle Fenster über elektrisch betriebene Kunststoffrollläden. Über den Aufzug erreichen Sie bequem die Tiefgarage, den Fahrradkeller sowie die Wasch- und Kellerräume. In unmittelbarer Nähe finden Sie Ärzte, Apotheken, schulische Einrichtungen sowie Kindergärten und Einkaufsmöglichkeiten für den täglichen Bedarf. Den Bonner Hauptbahnhof erreichen Sie mit dem Bus (Haltestelle Alfred-Bucherer-Str.) in kurzer Zeit. Die Autobahn A 555 ist ebenfalls gut zu erreichen.
Lage
Entfernung zu allgemeinem Arzt 10 min, Entfernung zu Einkaufsmöglichkeit des täglichen Bedarfs 10 min, Entfernung zu Grünanlagen 20 min, Entfernung zu Einkaufsmöglichkeit des täglichen Bedarfs 10 min, Entfernung zur Grundschule 05 min,Entfernung zur KiTa 05 min, Entfernung zu weiterführenden Schulen 15 min, ÖPNV Haltestelle Alfred-Bucherer-Str. ,Entfernung zu ÖPNV 05 min
Sonstige Angaben
HINWEIS ZUR BEWERBUNG: Um Ihnen den bestmöglichen Service zu bieten, können Sie sich bei uns digital bewerben. Kopieren Sie den untenstehenden Link in die Adresszeile Ihres Browsers und folgen Sie der Anleitung. https://tenant.immomio.com/apply/aa72b770-10ac-4342-a7f5-ad42703fcfba
DIE WOHNBAU, DAS KLAPPT
Eins, zwei, drei – Ihr neues Zuhause ist bei uns nur wenige Schritte entfernt.







